$405,000

1452 Stoneridge Drive
Ranchester, WY 82839

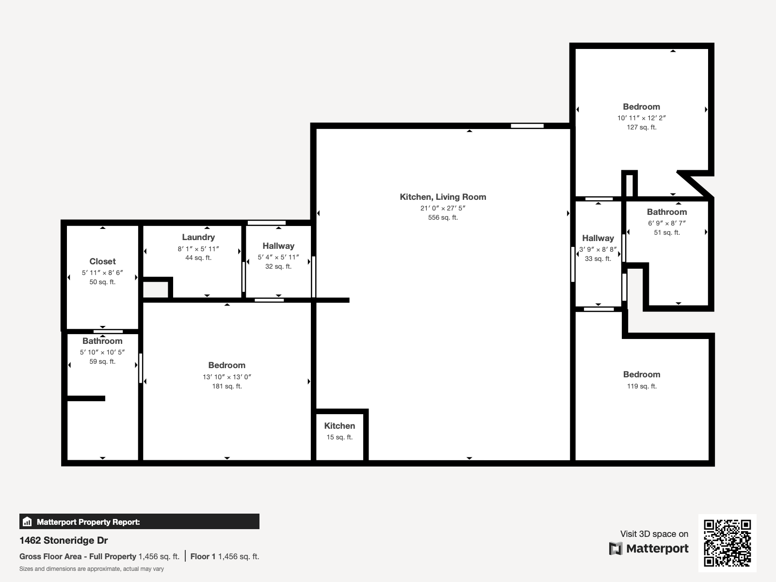
Beds: 3

Baths: 2 (full)

Sqft: 1,450

Acres: 0.22

Description

New Construction • Open Concept Living • Mountain Views. Welcome to this beautiful new ranch-style home in the heart of Ranchester, WY, offering comfort, functionality, and quality craftsmanship all in one thoughtfully designed package. Located in Stoneridge Meadows and within the highly regarded Sheridan County School District #1, this home features 3 bedrooms, 2 full baths, and a light-filled open-concept main living area—perfect for both everyday living and entertaining. Enjoy stunning mountain views right from your doorstep, adding a scenic touch to your daily routine and a peaceful backdrop for evenings at home. Whether you're looking to downsize, simplify, or settle into your first home, this floorplan delivers the ideal blend of space and flow.

With clean lines, modern finishes, and new construction peace of mind, it's a home that truly fits today's lifestyle.

Note: Taxes currently reflect lot value only. All measurements are approximate

Contact Mandy Koltiska To Learn More or Schedule a Tour.

By giving us your phone number and email address, you are giving CENTURY21 BHJ Realty, Inc permission to contact you via email, phone, or text.

Details

  • Agent: Mandy Koltiska
  • MLS Number: 25-634
  • Property Type: House
  • garage: 1
  • flooring: Hardwood Floors
  • construction: Combination, Lap Siding
  • roof: Composite Asphalt
  • style: Ranch
  • Open House: Yes
  • Open House Date and Time: 11/01/2025 12:00PM to 2:00PM
  • List Price: 405000
  • Residential Listings: Yes

Documents